Procesos y Mobiliario

CASA FERRÉ

Propuesta de implantación para vivienda unifamiliar en un entorno portuario con privilegiadas vistas.

CASA PATIOS

Propuesta de implantación para vivienda unifamiliar con una búsqueda de permanente relación con su entorno.

PÉRGOLA

Propuesta de pérgola exterior a edificación de mampostería. Formalización contemporánea respetando lo consolidado.

CASA PROCESIÓN

Propuesta de reforma interior de vivienda unifamiliar en la que se busca la calidad espacial y luminosidad manteniendo el aspecto exterior de la edificación dentro de un barrio de pescadores.

CASA NORDÉS

Propuesta de reforma integral interior y ampliación de vivienda unifamiliar respetando la estructura existente adaptándola a las numerosas nuevas necesidades.

CASA MARTA

Propuesta para vivienda unifamiliar en una parcela residual y trasera dentro de la trama urbana de la población.

CASA CASARIEGO

Propuesta inicial para vivienda unifamiliar en un entorno rural.

CASA CABAÑAS

Propuesta inicial para vivienda unifamiliar con variantes de vinculación con el espacio exterior según una climatología de extremos.

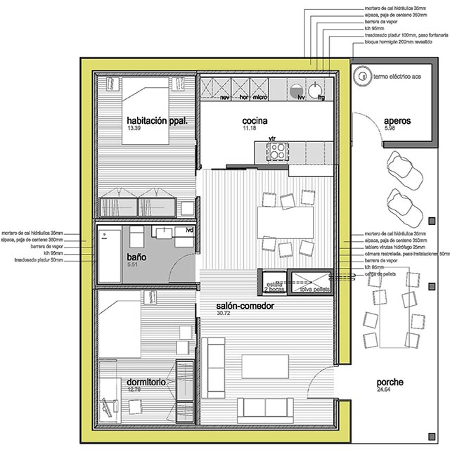
CASA VILLARRANDO

Propuesta de vivienda ecológica realizada con alpacas de paja.

MESA Z

Diseño de mesa para espacio espécifico realizada con un único tablero de madera de pino alistonado de 40mm y perfiles de acero UPN al natural.

MESA ESTUDIO

Diseño de mesa y apoyos para espacio espécifico de oficina realizada con un único tablero DM lacado en dos colores de 35mm y perfiles tubulares en ménsulas para liberar frente en acero pintado.

ALBERGUE

Consiste en la reforma de un pequeño edificio con acceso a plantas mediante escalera exterior y dos viviendas en un albergue.